Área do Cliente
|
Acesse pelo celular

Casa Residencial com 3 quartos, 289m² - Diário Ville, Rio Claro/SP

Casa Sobrado - Diário Ville Residencial para Venda em Rio Claro

|
Compartilhe:
Total para Acessórios valores sujeitos a alteração.

IPTU
120,00
Total para Acessórios valores sujeitos a alteração.

Venda

(ITBI, Registro, Escritura e Certidões)
Consulte-nos
Residencial
Finalidade
12436
Referência
3
Dormitórios
1
Suite
3
Banheiros
2
Garagens
289.59 m²
A. Terreno
320.00 m²
A. Construída
Descrição do Imóvel

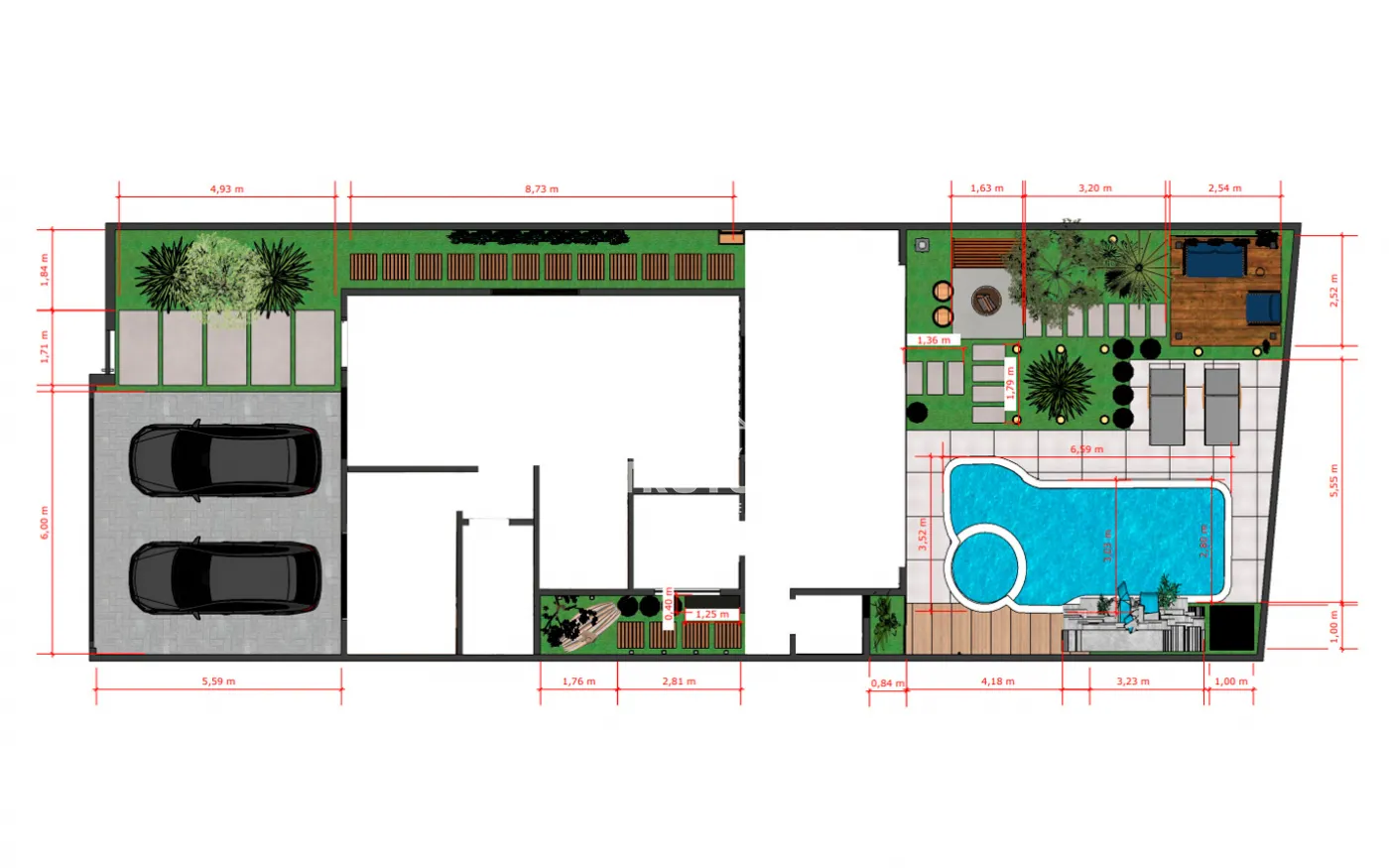
Sobrado moderno com piscina e área gourmet aos fundos ? entrega prevista para maio/2026

Sobrado em fase de construção, com projeto contemporâneo e excelente aproveitamento dos espaços, ideal para quem busca conforto, lazer e funcionalidade.

No piso térreo, o imóvel dispõe de garagem para 2 veículos, área gourmet localizada aos fundos, integrada à piscina, com banheiro de apoio, proporcionando um espaço perfeito para lazer e confraternizações. Conta ainda com sala de TV e sala de jantar integradas, cozinha, lavabo, área de serviço e área de luz, garantindo boa ventilação e iluminação natural.

O piso superior é destinado à área íntima, com dormitórios bem distribuídos, incluindo suíte(s), oferecendo conforto e privacidade, conforme projeto final.

Fotos ilustrativas do projeto
Previsão de entrega da obra: maio de 2026

Imóvel ideal para quem valoriza um projeto moderno, com lazer privativo e ambientes bem planejados.

Simule um Financiamento

Localização Casa / Sobrado em Rio Claro
Total para Acessórios valores sujeitos a alteração.


IPTU
120,00

Total / Mês
120,00



Venda

(ITBI, Registro, Escritura e Certidões)
Consulte-nos

Total
1.300.000,00

DÚVIDAS SOBRE O IMÓVEL
PREENCHA O FORMULÁRIO


Concordo com os Termos e Privacidade
Imóveis Similares